Hãy tính vải để may áo tay liền với số đo (cm) Da :65 ;Rv :38 ;Dt :14 .
Khổ vải 0,9m....
Khổ vải 1,15m....
Hướng dẫn trả lời
- Khổ vải 0,9m: (Dài áo + gấu + đường may) X 2 = (65 + 2 + 0,5) X 2 = 135 (cm)
- Khổ vải 1,15m: Dài tay +1/2 Rv = 14 + 19 = 27 (cm
(Dài áo + gấu + đường may) x 2 = (65 + 2 + 0,5) x 2 = 135 (cm)
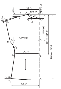
Hãy vẽ và cắt trên giấy thân trước và thân sao áo tay liền theo số đo mẫu ?
Hướng dẫn trả lời

Hãy nêu những điểm giống nhau và khác nhau giữa thân trước và thân sau của áo tay liền chui đầu ?
Hướng dẫn trả lời
Giống
Đều có:
Dài áo AX = số đo
Hạ nách AC = 1/4
Vn + 3 (cm)
Hạ eo AL = số đo
Từ các điểm A, C, L, X kẻ các đường ngang vuông góc với AX.
Rộng cổ AA1 = 1/5
Vc
Hạ xuôi vai BB1 = 1/10
Rv 10
Nối sườn vai A2B1 và kéo dài thêm đoạn B2H = số đo dài tay.
Vẽ cửa tay: Kẻ đường vuông góc với A2H tại H cắt CC1 kéo dài tại H1. Giảm cửa tay HH2 = 1cm. Nối B1H2A1B1H2 là đường sườn tay: H2H1 là cửa tay.
Ngang ngưc: CC1 =1/4
Vn + 3 (cm)
C1C2= 1/10
Vn-1 (cm)
Ngang eo LL1 = CC1 = 1cm
Ngang mông XX1 = CC1 + 1 (cm)
Khác:
